EFHs Niedermoosen
Platzfinder
Angebote
Kontakt
Menü
Platzfinder
Angebote
Kontakt
X
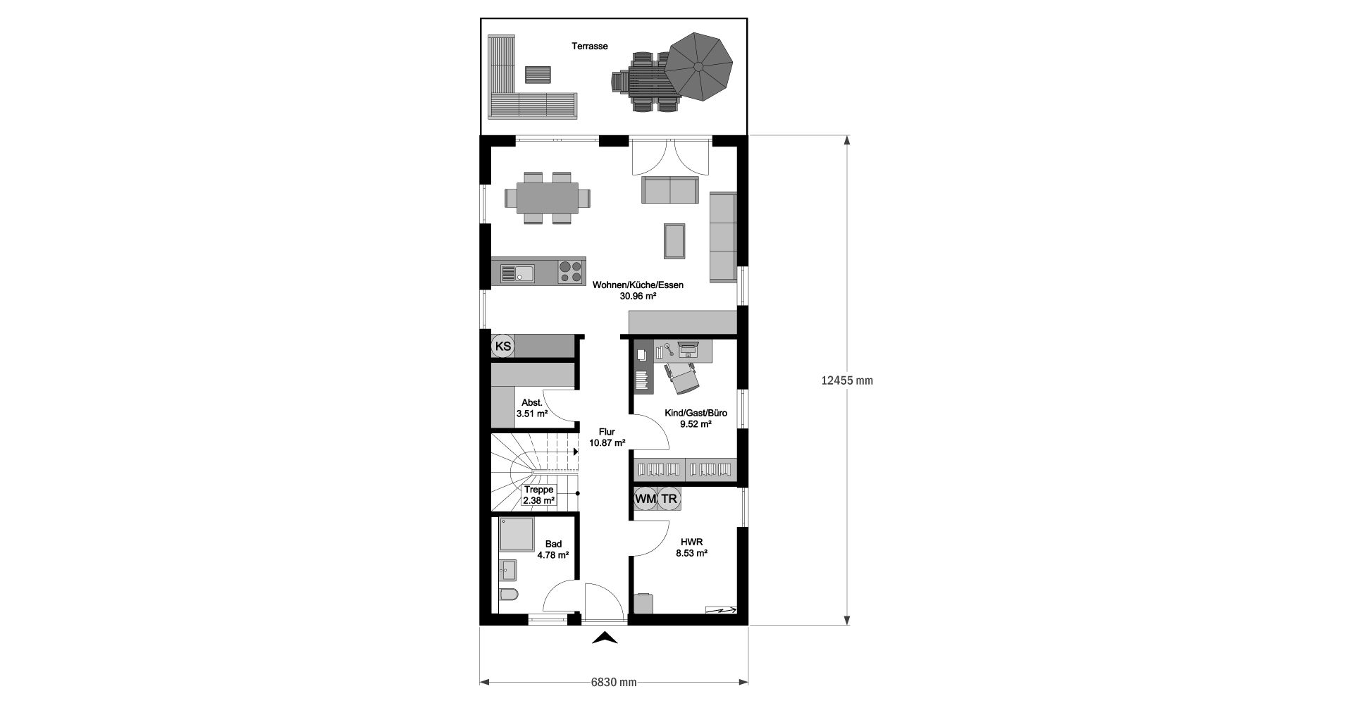
PL7-HAUS-A
Normal
Previous
Next
Loading...
2-3PL7
4-1
1
7726_2D
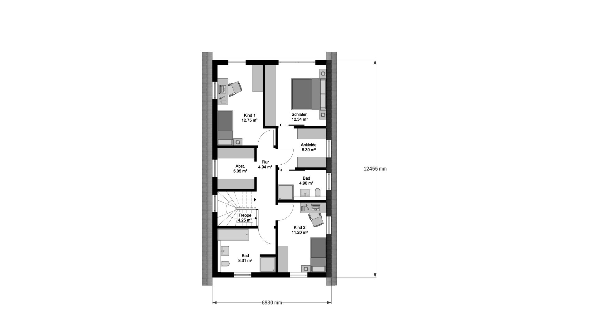
OG